VI
•
EN
CĂN HỘ - PENHOUSE - DUPLEX
NHÀ PHỐ - BIỆT THỰ
VĂN PHÒNG - CỬA HÀNG
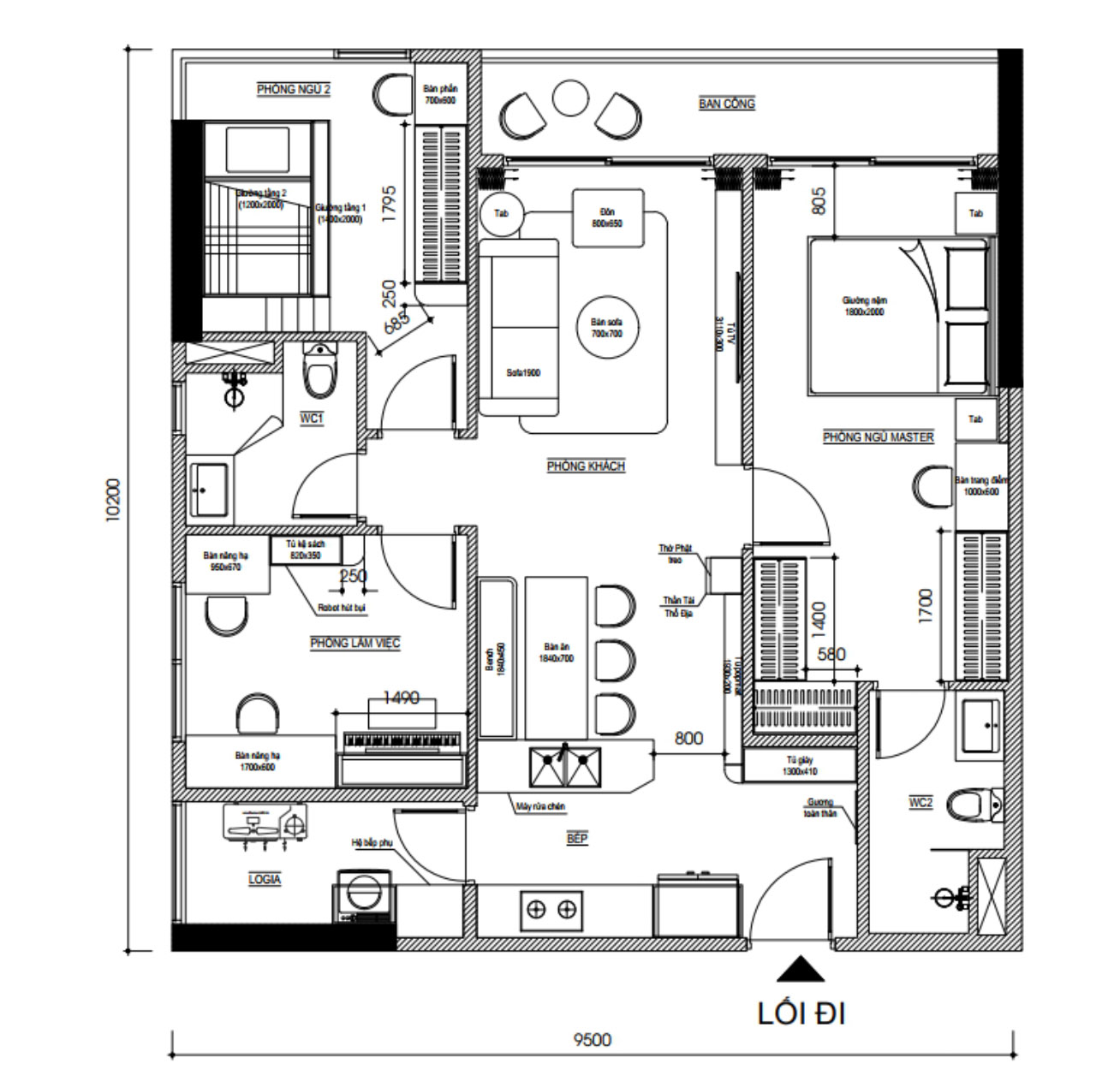
SKULLPANDA APARTMENT
Căn hộ
Thiết kế: VINHWANG
Diện tích: 95 m2
Năm: 2024
Dự án: Akari - Bình Tân - TP. HCM
CĂN HỘ - PENHOUSE - DUPLEX
NHÀ PHỐ - BIỆT THỰ
VĂN PHÒNG - CỬA HÀNG
Liên Hệ
Tin tức